Service: New Building
Location: Robinson, Illinois
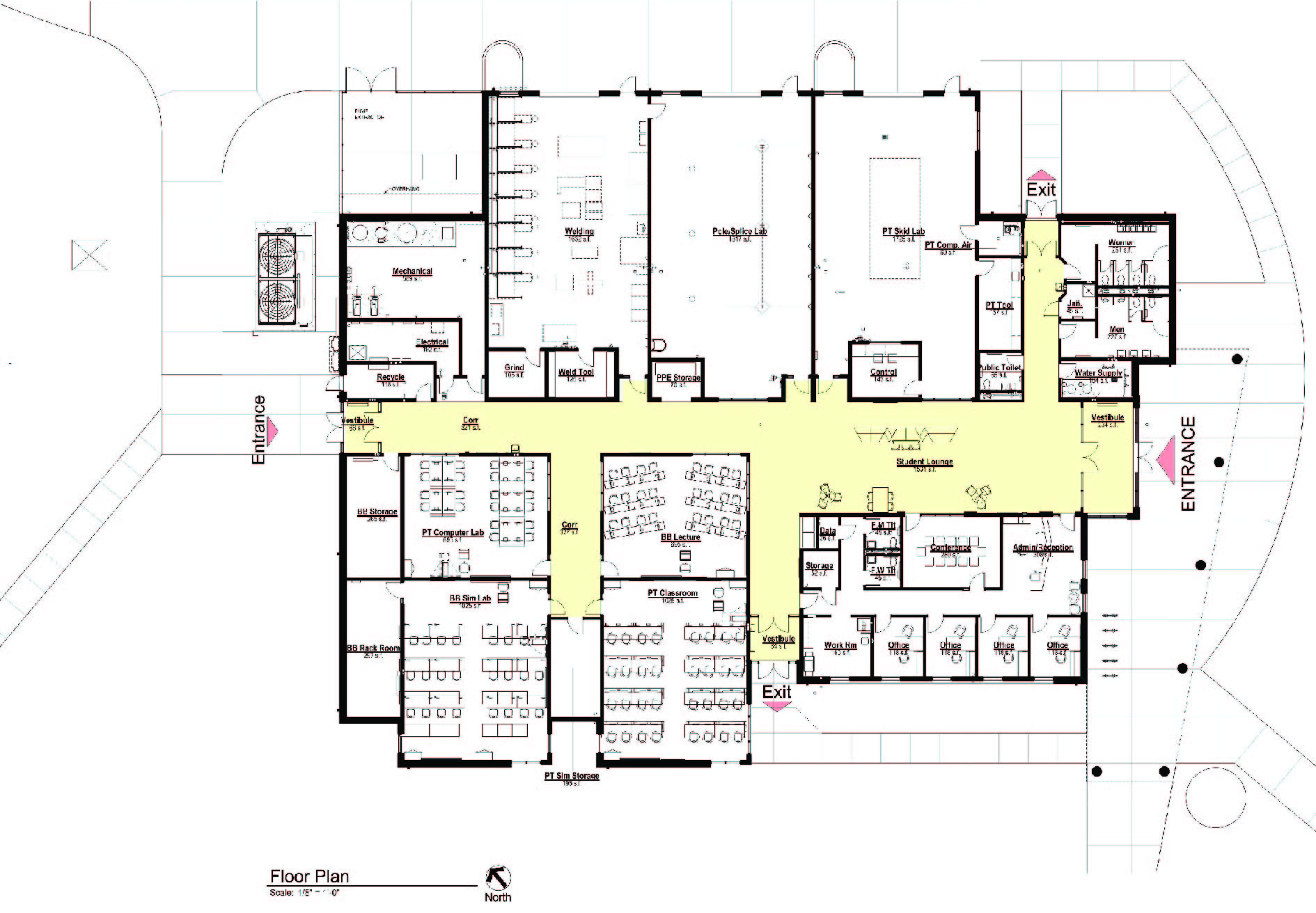
Building Area:18,000sf
IECC Chancelor: Dr. Ryan Gower

LTC President: Tona Ambrose, M. Ed
Project Budget: $13 million

After more than two decades of planning, Lincoln Trail College broke ground on a state-of-the-art Technology Center designed in close collaboration with Graham & Hyde Architects. The new facility, developed through an extensive planning and design process with the G&H team, will house high-demand programs in Welding, Process Technology, and Broadband Telecommunications, strengthening technical education across the region with spaces tailored to hands-on, industry-aligned training.

The Technology Center, designed by Graham & Hyde Architects in conjunction with IECC’s CFO and Project Manager, and Capital Development Board’s support to create high-demand pathways, directly aligning LTC’s training capacity with regional workforce opportunities. LTC also plans to partner with area high schools to share access to the new G&H-designed facility for vocational training. High school students will gain hands-on experience and even earn early college credentials, while IECC’s Business and Industry division will use the space for short-term training, custom employer partnerships, and incumbent worker upskilling.

The steady support of the IECC Board, the dedication of LTC’s administration, in partnership with Graham & Hyde Architects made the difference. Now, LTC is moving forward with a facility that will transform how they deliver technical education at LTC.

A groundbreaking took place in the Fall of 2025 with a scheduled completion during the Summer of 2027.

  • Lincoln Trail Community College
  • Lincoln Trail Community College
  • Lincoln Trail Community College
  • Lincoln Trail Community College